York Road, Billericay

Bedroom1
Bathroom1
Beds sqft388
  • Offers In Excess Of £190,000

Description

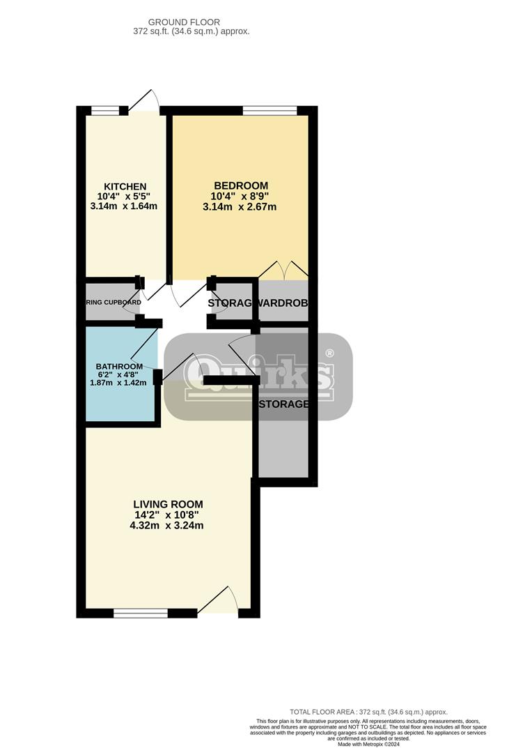
SOLD BY QUIRKS ** Offered Chain Free ** - Located in the ever popular Queens Park Development is this One Bedroom Flat with very long lease. The property offers a great opportunity for both investors and first time buyers alike with ample parking.

Located in the ever popular Queens Park Development and being offered with No Onward Chain, is this one bedroom ground floor maisonette with its own entrance door and garden.
The living room is to the front of the property and offers plenty of space for furniture and storage. The bedroom at the back is a double room with built in storage. The galley kitchen offers a stacked double oven and offers further space for appliances, also with access out to the private rear garden. The bathroom has been well kept and comprises of three piece white suite.
Further storage is found in the good size storage cupboard and additional airing cupboard, located in the hallway. This Maisonette has two parking spaces with it along with a very long lease (955 years). The ground rent is peppercorn and there is no service charge. Located within close proximity to shops at The Pantiles, including Co-Op Supermarket, also a short distance to Lake Meadows Park and Mainline Railway Station.

Living Room (3.05m.25.91m x 4.27m.7.92m (10.85 x 14.26))

Bedroom (2.44m.29.87m x 3.05m.1.52m (8.98 x 10.05))

Kitchen (1.52m.19.20m x 3.05m.13.41m (5.63 x 10.44))

Bathroom (1.22m.25.60m x 1.83m.7.01m (4.84 x 6.23))

Two allocated parking spaces

Private garden

Property Documents

York Road, Billericay

Property Overview

  • Price Offers In Excess Of £190,000
  • Property Size 388 sqft
  • Bedroom 1
  • Bathroom 1
  • Room 1

Layout Details

Estimate Payments

Schedule a visit

Your information